Droomwonen, Verkocht
€300.000 k.k.





























Wat een heerlijk thuis! Deze schitterende 4-kamerwoning in Nieuwerkerk aan den IJssel is niet alleen compleet vernieuwd, maar beschikt ook over een gezellige woonkamer en een royaal balkon waar je in alle rust van de groene omgeving kunt genieten. Al met al, een perfecte woning in een vredige en aantrekkelijke buurt!
De woning bevindt zich in het kindvriendelijke gedeelte van de woonwijk Zuidplas. In de nabije omgeving bevinden zich verschillende openbare voorzieningen zoals scholen, supermarkten, openbaar vervoer en het winkelcentrum Reigerhof. Daarnaast is de uitvalsweg (A20) uitstekend te bereiken in maar slechts 3 minuten! De woning ligt ook op loopafstand van het Valkenpark en het Groene Hart park waar je naar toe kunt voor een heerlijke wandeling in de natuur.
Dit jaren ’70 appartement is helemaal turn key opgeleverd conform de woonwensen van nu met hoogwaardige materialen. De woning is voorzien van een nieuwe keuken met apparatuur, badkamer, toilet, combi ketel, elektra, waterleidingen en een nieuwe meterkast en lichtpunten. Verder zijn alle muren en plafonds gestuukt, is het houtwerk geverfd en ligt er door de gehele woning een strakke laminaatvloer. Kortom je betrekt een compleet nieuwe woning welke op hoog niveau is gerenoveerd!
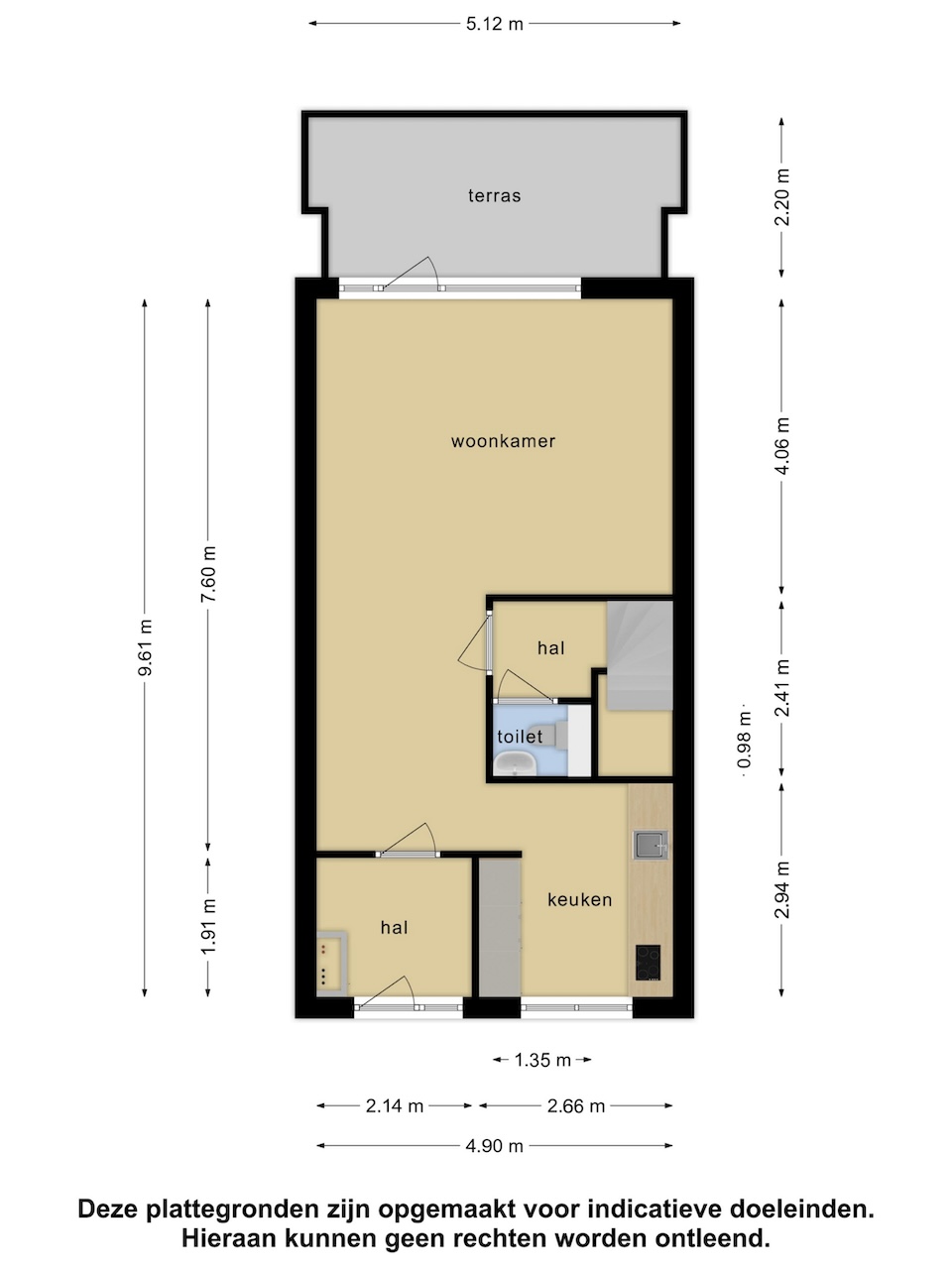
Indeling: Gezamenlijke entree (gesloten portiek) op de begane grond.
Eerste verdieping:
– Hal met toegang tot de meterkast en de woonkamer.
– L-vormige woonkamer (ca. 7,60 x 4,90/2,40) met halfopen keuken en toegang tot het balkon en gang.
– Gang met toegang tot de trap naar de tweede verdieping en het toilet.
– De keuken (ca. 2,90 X 2,70m) beschikt over een zwart keukenblok, wit marmer aanrechtblad, 4-pits inductiekookplaat met afzuiging, vaatwasser en drie hoge kasten met daarin apparatuur als koelkast, vriezer en combi magnetron/oven.
– Toilet met vaste wastafel.
– Balkon (ca 5,10 x 2,20m).
Tweede verdieping:
– Overloop met toegang tot de badkamer, kamer/berging en twee slaapkamers.
– Kamer/Berging (ca. 4,90 x 1,50m) met wasmachineaansluiting.
– Keurig wit marmer betegelde badkamer (ca. 2,40 x 2,60/1,70m) dat beschikt over een (inloop)douche, dubbel badkamermeubel en design radiator.
– Twee slaapkamers (respectievelijk ca. 5,00 x 2,70m en 5,00 x 2,10m).
Bijzonderheden:
– Direct te betrekken;
– Luxe materialen;
– Lampen zijn ter overname;
– VvE bijdrage voor woning met berging € 175,20
– Projectnotaris van toepassing;
– Verkoper heeft de woning zelf niet bewoond;
– Oudersdomclausule is van toepassing.
De meetinstructie is bedoeld om een meer eenduidige manier van meten toe te passen voor het geven van een indicatie van de gebruiksoppervlakte. De meetinstructie sluit verschillen in meetuitkomsten niet volledig uit, door bijvoorbeeld interpretatieverschillen, afrondingen of beperkingen bij het uitvoeren van de meting.
Stadhoudersweg 149a