Droomwonen, Verkocht
€400.000 k.k























Het appartement is centraal gelegen in de geliefde en karakteristieke wijk Bergpolder. Door de centrale locatie hoef je niet per se naar het stadscentrum om de gezelligheid op te zoeken. De Zwaanshals, Zaagmolenkade en het Noordplein met diverse horecaspots en unieke winkeltjes bevinden zich op loopafstand. Het Vroesenpark, het Kralingse bos en de Bergsche Plas zijn ook dichtbij. Het stadscentrum, openbaar vervoer (tram, bus, trein; Centraal Station, Station Noord en de Randstad Rail) en de uitvalswegen A13, A16 en A20 zijn zeer goed bereikbaar. Al met al de perfecte plek!
Deze jaren ’30 woning is helemaal turn key opgeleverd conform de woonwensen van nu met hoogwaardige materialen. De woning is voorzien van een nieuwe keuken met apparatuur, badkamer, toilet, centrale verwarming met HR-combi ketel, elektra en waterleidingen. Verder zijn alle muren en plafonds gestuukt, is het houtwerk geverfd en beschikt de gehele woning over lamelparket. Kortom, je betrekt een compleet nieuwe woning welke op hoog niveau is gerenoveerd!
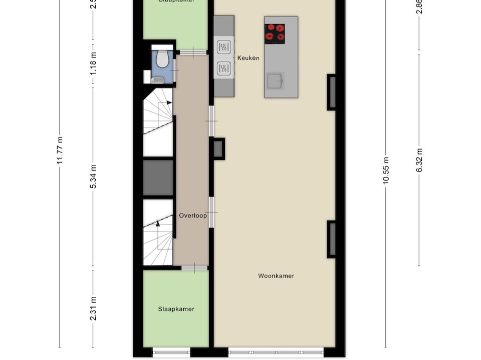
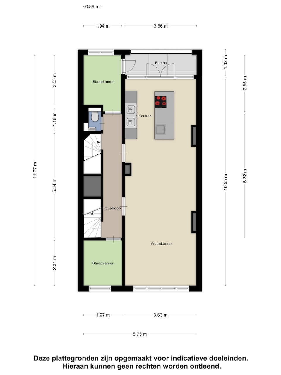
Indeling: eigen entree op de eerste verdieping.
Derde verdieping:
– Hal met toegang tot de woonkamer met open keuken, twee slaapkamer, toilet, en trap naar de vierde verdieping.
– Woonkamer (ca. 10,60 x 3,60m) met open keuken toegang tot het balkon.
– De keuken beschikt over een zwart keukenblok, wit marmer aanrechtblad, 4-pits inductiekookplaat met afzuiging, vaatwasser en vier hoge kasten met daarin apparatuur als koelkast, vriezer en twee combi magnetron/oven met heteluchtfunctie.
Vierde verdieping:
– Keurig wit/zwart betegelde badkamer (ca. 1,80 x 3,60m) met douche, toilet, badkamermeubel en design radiator.
Bijzonderheden:
– Opkoopbescherming van toepassing. De meetinstructie is bedoeld om een meer eenduidige manier van meten toe te passen voor het geven van een indicatie van de gebruiksoppervlakte. De meetinstructie sluit verschillen in meetuitkomsten niet volledig uit, door bijvoorbeeld interpretatieverschillen, afrondingen of beperkingen bij het uitvoeren van de meting.
Statenweg 124a